A lo largo de mi trayectoria profesional el ímpetu por aprender con la firme voluntad de superación me ha llevado a moverme en diferentes actividades de construcción y de promoción, siempre ilusionantes, con la única obsesión de culminarlas satisfactoriamente para mis clientes o jefes, pero que a su vez me colmasen con una gran satisfacción personal.
La profesión de aparejador o arquitecto técnico por sus numerosas atribuciones y competencias, afortunadamente me lo ha permitido.

De las actuaciones en viviendas o apartamentos para su rehabilitación, adecuación o reforma nos satisface especialmente la consecución de su «puesta en valor«. Apartamentos antiguos, que como diamante en bruto no dejaban ver lo que realmente podían llegar a brillar, mediante una metamorfosis constructiva los hemos transformado en inmuebles deslumbrantes y valiosos.

Atendiendo a las indicaciones y necesidades del propietario realizamos algunas propuestas de diseño que aportarían valor a la construcción y no sólo con la calidad y renovación de materiales sino también optimizando el uso y aprovechamiento de la superficie y aportando confort a las estancias

COLABORACIÓN SOCIEDAD TASACIÓN GESVALT
Hemos realizado colaboraciones en la toma de datos y obtención de documentación para tasaciones de mas de 350 inmuebles de Sevilla y algunos de Badajoz para la sociedad oficial de tasación Gesvalt

GESTIÓN INMOBILIARIA

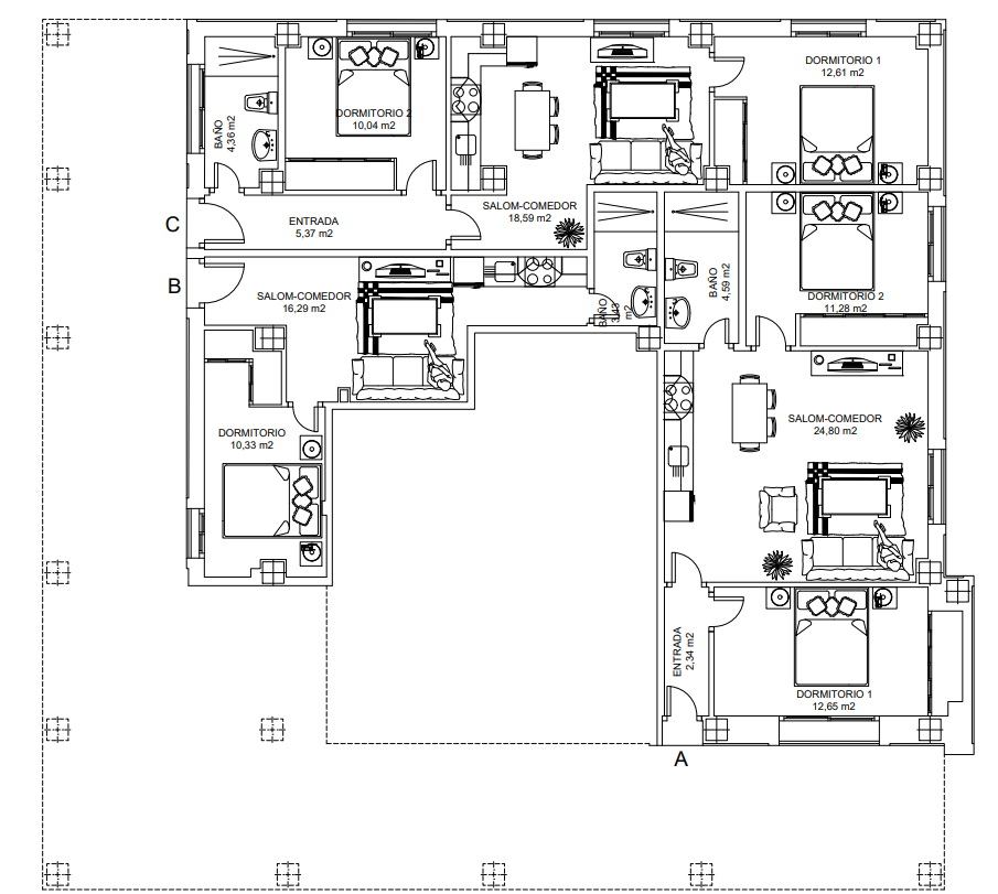
ESTUDIOS CAMBIO DE USO
Estudios y proyectos para la obtención de licencias urbanísticas por cambio de uso de locales a viviendas consiguiendo de esta forma optimizar el valor del inmueble porque así lo demanda la zona donde se ubica.
Se ha realizado un estudio para la transformación de un local restaurante en tres apartamentos en C/Pirineos (Sevilla)
También en dos locales de Villanueva del Ariscal (Sevilla) se ha cambiado el uso a viviendas. Estos locales durante 20 años no se han podido vender y con el cambio de uso inmediatamente fueron comprados.

COLABORACIÓN EN PROYECTOS DE OTROS PROFESIONALES
Proyecto de reforma de Campo de Tiro Olímpico en Camas (SEVILLA) – Mediciones y Presupuesto













